MSS系列下行式移动模架造桥机
Product-ID:C5973产品视频
产品介绍
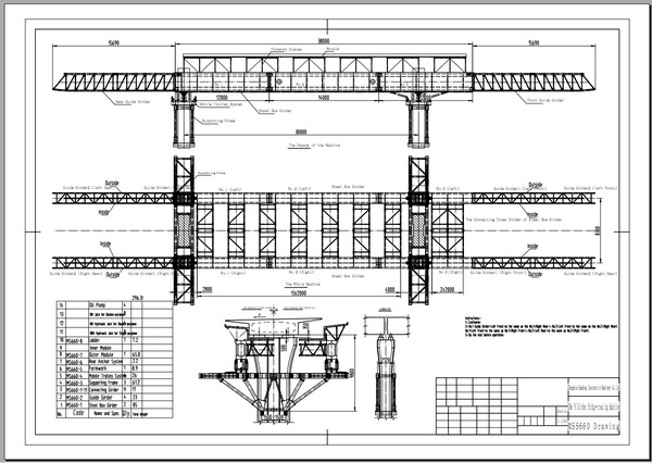
MSS下行式移动模架造桥机为满足30m连续箱梁施工而研制,使用在原位现浇的逐孔施工工法而设计制造的桥梁施工设备。该机的特点是主梁刚度大,支撑架安装方便,能适应于各种墩宽及墩厚的墩身。
产品特点
1、本机采用桥面下支承,利用两组钢箱梁支承模板,通过主梁携带模架及模板整体横移、纵移过孔。
2、整机配备三套支腿,浇筑混凝土梁体施工时,由两套支腿支撑,后边一套在过孔前,倒移到前方桥墩上安装,来满足过孔需要,逐孔施工,循环倒移。
3、整机配备四套液压系统,实现模架自动顶升、横移及纵移动作。
主要技术参数
| 项目/数据/型号 | MSS650 | MSS1650 |
|---|---|---|
| 跨度(m) | 30 | 50 |
| 一次现浇梁重量 (t) | 650 | 1650 |
| 适应纵坡/横坡 | 0.2-2.5% | 0.2-2.5% |
| 整机纵移速度 (m/min) | 0.5 | 0.5 |
| 整机自重(t) | 300 | 660 |
| 工作时最大支撑梁反力 (t) | 3160 | 8270 |
| 走行时最大支撑辊支撑反力 (t) | 1030 | 2890 |
产品视频
产品图纸



点击下载MSS系列下行式移动模架造桥机图纸










