HZQ550t单、双线架桥机扩展使用探讨
关键词:架桥机;小曲线半径;桥墩窄;功能扩展;技术创新
1 概述
1.1 HZQ550型架桥机简介
HZQ550型导梁式架桥机是郑州市华中建机有限公司针对郑州至西安客运专线ZXZQ01标段出现的单线整孔箱梁和双线并置箱梁的架设而开发的具有独立自主知识产权的大型桥梁施工设备。该设备既能架设单线箱梁,又能利用与桥机配套的墩顶移梁机构方便快捷地架设双线并置梁。之前的客专、高铁线路大多都为大半径曲线(R≥2500m)、小坡度、宽桥墩,故使用普通的架桥机就可满足施工条件。而进入郑州市段的郑西客专有R=1500m的曲线桥,该桥机在设计时就从结构本身上做了创新,如在辅助支腿下设置了芯盘,可实现下导梁、前悬臂摆头。该桥机还具有结构紧凑、总高宽尺寸小的特点,所以能在不拆除任何部件的情况下通过自身的横移及行走机构方便地自行过提篮拱(如图一所示),还能在简单拆解部分部件如:拆除O型腿第一段、折叠前支腿的情况下通过国内时速250km客运专线隧道(通过隧道断面情况如图二所示)。
|
图一 HZQ550型架桥机正在过提篮拱 |
图二 Q550型架桥机隧道断面 |
1.2 HZQ550型架桥机的技术参数及总体组成
1.2.1 主要技术参数
(1)架设跨度:32m、24m、20m
(2)梁体吊装方式:四点起吊,三点平衡
(3)额定起吊能力: 550吨
(4)适应最小曲线半径: 1500m
(5)作业最大坡度:20‰,工作最大横坡:40‰
(6)过孔运行速度:0—3m/min
(7)架梁速度:4h/孔
(8)整机装机容量:300KW
(9)整机自重:4150KN(含驮运支架)
(10)零部件最大尺寸与重力基准:长途汽车运输不超限
1.2.2 总体组成
HZQ550型架桥机是一种下导梁式移动吊装起吊的架梁设备,主要由主纵梁、前悬臂、前支腿、O型腿、辅助支腿、下导梁、前后起重天车、辅助小车、托运支架、梯道平台、液压系统、电气系统等组成。
1.2.2.1 主梁
主梁为双箱梁结构形式,每根梁由7节组成,其中5节为主承重梁,2节为前方悬臂梁,主梁下盖板设置若干不同位置的前支腿连接位,以满足架设不同跨度时支腿位置调整的要求。断面尺寸为2300mm(高)×1100mm(宽),主材质为Q345C,主梁下部设有支腿变跨纵移轨道,上部设有起重天车通行轨道。
1.2.2.2 下导梁
下导梁为单梁,由4节箱梁、前后支腿组成,断面尺寸为2000mm(高)×1200mm(宽),主材质为Q345C,导梁移动方式是采用前吊梁小车、辅助支腿及辅助天车配合作业完成纵移过孔。
下导梁结构的创新性将在下文述及。
1.2.2.3 辅助支腿
辅助支腿为箱型、内外导柱式结构形式,在两个箱型柱之间配置有液压油缸,以调节支腿高度适应桥梁纵坡变化的要求;辅助支腿通过横梁与架桥机主梁联结,辅助支腿由横梁、固定节、伸缩节、顶升油缸、走行轮组及吊挂轮组组成;辅助支腿支撑在下导梁上用以辅助架桥机过孔,配有链条链轮动力驱动机构;辅助支腿与下导梁的联结通过球面芯盘和芯轴连接,有三个自由度的调整,可以保证架设曲线桥(R≥600m)的要求。在桥机导梁纵移过孔时, 辅助支腿球面芯盘可以方便的调整辅助支腿不同角度(坡道)的变化, 球面芯盘还可以以芯轴为转轴360度旋转;方便导梁在曲线桥上的摆头.
辅助支腿结构及功能的创新性将在下文述及。
1.2.2.4 辅助小车
辅助小车由走行机构、U型小车架、横移机构、横移油缸等组成,通过辅助小车的横移机构及横移油缸可将下导梁前段偏移一定距离以满足曲线桥架设的需要。
辅助小车结构及功能的创新性将在下文述及。
1.3 成灌线快速铁路工程概况
成(都)灌(县)快速铁路总运营里程65km,起自成都站,终到都江堰市青城山站。全线桥梁总长占全线的67.8%,最高时速为200km,要求2010年5月12日正式开通运营。成灌铁路是汶川地震灾后恢复重建的一项标志性工程,体现了铁路系统坚决贯彻落实中央重大决策部署的实际行动,凝结着全国铁路干部职工对灾区人民的深情厚谊,为灾区人民重建美好家园提供了重要的基础设施保障。
由中铁八局承建的成灌快速铁路都江堰段,全长共约9.8公里,该段桥梁中的连续梁较多,占到了32.7%,并且是穿插在简支梁中。成灌快速铁路的桥梁上部结构的梁体采用的是单线整孔单箱单室梁结构,其中以32m简支箱梁居多,32m简支梁长32.6m,桥面板宽为7.15m,梁高2.354m,重约450吨。下部结构的桥墩支座中心距为2.05m,墩顶外宽为2.9m、外长为3.5m。
1.4 成灌线新建铁路技术难点
成灌快速铁路要求2010年5月12日前建成通车,工期时间短,桥墩支座中心距窄小,且整段桥型曲线多,曲率半经小,最小曲率半径为R600m。对施工单位是个极大的考验,为了保证质量又保证工期,施工单位决定以最快的速度再添设一套运架设备,恰好架设荥阳至郑州段(郑西客运专线引线)中铁七局的HZQ550型架桥机已架设完该段的双线并置梁,处于闲置状态,通过比照成灌线与郑西线施工工况、桥墩及混凝图箱梁结构型式的异同,于是决定将郑西线上的HZQ550型架桥机从功能上扩展后用于成(都)灌(县)快速铁路桥梁架设,以支援灾后重建工作。
2 HZQ500t架桥机功能扩展措施、方向
2.1辅助小车改进措施
依《新建时速200~250公里客运专线铁路设计暂行规定》(铁建设【2005】140号)文件要求客运专线的最小曲率为R2000m,而成灌线最小曲率为R600m,这样就要求架桥机辅助小车横移机构由原来±350mm的横移量改为±1200mm以满足新曲线的要求。其设计改造措施如下:
2.1.1
更换辅助小车横移油缸,行程由原来的±350mm改为±1200mm;
2.1.2
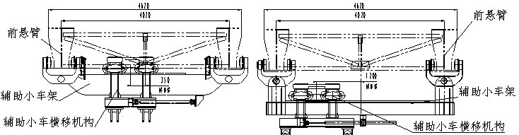
链条固定支座由内侧安装改为在前悬臂梁外侧安装,以增大辅助小车横移机构的横移空间;辅助小车架的结构形式做适当修整,也为了增大辅助小车横移机构的横移空间。具体如下图三所示:

图三 郑西客专(左)和成灌线(右)辅助小车改造前断面
2.2 前支腿、下导梁改进措施
郑西客专线桥墩垫石中心距为3.0m,而成灌线垫石中心距为2.05m(如图四所示)
前支腿、导梁支腿站位十分困难,解决办法如下:
前支腿原中心距为3.5m,如果直接让原前支腿放在成灌线桥墩上,显然是不合理的。所以将其中心距改为2.4m,相应的下导梁支腿中心距也由2.05m改为1.08m,而下导梁本身外宽1.08m,即下导梁支腿是直上直下的,经验算按此方案改造架桥机沿着下导梁过孔时横向稳定性通不过,尤其在曲线上(R600m)架桥机过孔时容易侧翻。分析此种情况下架桥机容易侧翻的原因有:a、曲率半径小;b、桥墩窄;c、下导梁重心高。经过分析前两种原因是不能改变的,只有从下导梁重心高入手,于是将下导梁支腿去除,在其下两端头处各做一个垫块,并且该垫块能卡在墩台的两个垫石中间,这样就保证了桥机过孔时下导梁的横向稳定性。同样地桥机的纵向稳定性也不能忽视,因为架桥机过孔时对下导梁有一个纵向的摩擦力,为了防止下导梁滑移需要将其与墩台锚固,以策安全。

图四 郑西客专(左)、成灌线(右)单线桥墩图
2.3 架桥机末跨施工方案改进措施
由于下导梁在墩台上的站位是要超出最前方桥墩3m,这样在末跨架设时,导梁就要倾斜放置,出现站位困难的情况,从前面“工程概况”中得知此条新建铁路中连续梁较多,所以下导梁还需要经常上梁面,于是架桥机在末跨施工时需要在下导梁尾部设置一个临时支腿,以保证导梁前段能放置在桥面上。(如图五所示)

图五 HZQ550型架桥机末跨施工图
2.4 辅助支腿改进措施
为了过孔安全将下导梁支腿拆除,而为了下导梁上桥面设置了一个临时导梁后支腿,这样就要求辅助支腿伸缩量由原来的±600mm改为-600mm ~~+3200mm,我们起初的设计思路是在原有基础上加垫块(如图六所示),此方案设计思路简单,在原来的辅助支腿基础上改动量不大。当下导梁需要上桥面时就需要先把垫块搬掉,并且要在下导梁下面加垫块以保证辅助支腿能将下导梁提起来,比较费工费时。

图六 HZQ550型架桥机辅助支腿设计改造方案对比
为了方便工人操作,减轻劳动量,提高工作效率,经与施工单位讨论比较后,选取了如图六所示的伸缩套柱、油缸爬杆、上下换插销子方式。
3 施工效率
由于将HZQ550型导梁式架桥机的辅助支腿、辅助天车、下导梁从功能上拓展优化后,整个桥机的施工效率也明显提高了,成灌线新建铁路的施工实践证明:在人员、物资配备充分的条件下该架桥机
可在3h内顺利架设完一片混凝土箱梁并实现一个作业循环。
4 结语
客运专线、高速铁路、城际轨道交通在我国目前是蓬勃发展,各中铁单位、中交单位、水电单位等业已购买了相当数量的运架提设备,随着新开工的客专、新建铁路迅速增加,其中有些线路与先前开工的粱形、墩台稍微有些区别,就可采用类似于郑西线设备功能扩展后用于成灌线那样使各工程单位已有的运架提设备得到充分再利用。该设备已于两个月内完成了成灌线的架设任务,大大缩短了施工周期,同时也为国家节约了大量开支。
参考文献:
[1] GB/T3811-2008,起重机设计规范[S]
[2] TBJ2-96,铁路桥涵设计规范[S]
[3] 新铁建设【2005】140号,建时速200~250公里客运专线铁路设计暂行规定[R]
[4]、GB50017-2003, 钢结构设计规范[S].
[5]、GB3766-83, 液压系统通用技术条件[S].
作者简介:郑州市华中建机有限公司 技术部
地址:河南省郑州市上街区工业路114号郑州市华中建机有限公司
本文受法律保护,未经授权,禁止转载.









