HZQ900吨架桥机在哈大线穿越8m限高的转场施工技术
摘 要:以哈大铁路客运专线HZQ900型架桥机低位穿越净空仅8m的哈尔滨市四环路公路跨铁路桥的施工转场作业为例,分析了该机穿越公路跨铁路桥的施工难点,并提出了解决方案。简要介绍HZQ900型高速铁路架桥机的主要特点和作业模式,侧重介绍该机低位转场中用到的主要部件的功用组成和技术创新点,同时阐述了低位转场作业流程。实践表明以下所述低位转场作业方案能够实现架桥机超低位穿越限界的要求,并具有安全、经济和高效的性能,对类似工程具有一定的指导和借鉴作用。
关键词:HZQ900型架桥机 客运专线 低位转场 驮运支架 公路跨铁路桥
1 概述
由于我国幅员辽阔,地形、地势差异较大,客运专线(高速铁路)中的桥梁所经行地区情况千差万别。为提高桥梁的施工质量和效率,并使资源配置最优,目前我国普遍采用现场集中制梁,而且梁厂选址一般在施工区段中部,提高了运架设备经行桥梁架设作业时的效率。因梁厂在施工区段中部,桥梁架设施工一半结束后,需要架桥机调头、返回梁场。在哈大客运专线就出现客运专线与哈尔滨市四环路相交汇(即公路跨铁路桥)的情况,而且它们之间净空高仅有8m,如何方便快捷地让架梁设备通过公路跨铁路桥,为哈前立交的45孔箱梁的架设提供设备保证,这成为中交二航局哈大项目部需要解决的一个难题。
2 HZQ900架桥机的主要特点、结构形式及低位转场作业的难点分析
2.1 HZQ900架桥机的主要特点
HZQ900架桥机是郑州市华中建机有限公司针对客运专线(高速铁路)900t混凝土箱梁的架设而研制开发的具有独立自主知识产权的导梁式大型桥梁施工设备,该设备能满足不同跨度梁(32m、24m、20m等)的架设和曲线桥梁(曲线半径R≥600m)的施工要求;其配备有低位驮运转场支撑架,所以经过简单折叠拆卸后在运粱车的辅助驮运下能方便通过提篮拱、叠桥、隧道等限界建筑。
2.2 HZQ900架桥机的主要结构形式
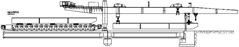
HZQ900型架桥机主要由主纵梁、前悬臂、后支腿、前支腿、辅助支腿、起重天车、辅助小车、卷扬机构、下导梁、转场支架、电器系统、液压系统、梯道栏杆等组成(如图1所示)。下面就低位转场用到的部件进行简要介绍。

图1 HZQ900型架桥机
2.2.1 后支腿
后支腿的主要功能:①作为架桥机架梁时的后支点,支撑在混凝土箱梁桥面;②过孔走行时的后支点,由走行机构驱动架桥机纵移过孔。后支腿为“O”型箱梁结构,由后支腿第一段、第二段、第三段、第四段及后走行机构组成,各段之间采用高强螺栓连接,其中第一段重达30t。
2.2.2 前支腿
前支腿是架桥机的前端支点,支撑在架桥机施工的前方桥墩上,变跨作业时通过与主梁的变位孔群实现变跨。末跨梁架设时,前支腿的折叠段折叠收起,由伸缩立柱支撑在桥台、连续梁或提篮拱桥端部桥面。前支腿整体为门架结构,主要由上走行机构、上横梁、中横梁、外导套、内导柱、伸缩油缸、螺旋微调机构组成。
上横梁和外导套之间设有折叠铰座,利用手拉电动葫芦将前支腿整体向前翻转成水平状态,以实现整体低位驮运。
2.2.3 辅助支腿
辅助支腿在架桥机过孔时是整机的前端支点,力作用在下导梁上。主要由上、下走行机构、上横梁、外导套、内导柱、伸缩油缸组成。它的低位驮运方式同前支腿。
2.2.4 驮运支架
驮运支架由一套后门式支架和两套伸缩机构组成,该转场设备既能实现高位转场又能实现低位转场。
门式支架为简单的门式框架结构,由上横梁、上下立柱及折叠铰座组成。其主要功能是架桥机转场伸缩机构需要进入架桥机安装时,门式支架作为后支点代替后支腿,即可让运梁车能开入架桥机腹部。
伸缩机构主要由顶横梁、底横梁、伸缩立柱组成,其中伸缩立柱由内、中、外三套管组成,其上有等间距的销轴孔,可以使架桥机逐级降到低位。
2.3 低位转场作业的难点分析
由于HZQ900架桥机自重达600吨,如此庞大的机体在运输、高空吊装、调头过程中的组织和作业,与工作人员人身安全和工程成败息息相关,这就要求架桥机驮运转场必须安全高效。如果对架桥机采取分解拆除通过,将要花费大量的人力、财力,还要严重影响哈大工程的整体工期。
为此,该项目部专门工作组和设备生产厂家制定了HZQ900t架桥机低位穿越哈尔滨市四环路的详细方案,采取低位驮运、加固设备等方式,确保架桥机能安全、快速通过限高。首先,对于架桥机主梁以下的大型(尺寸大、重量重)结构能通过折叠降低高度就不拆除,所以选定拆除O形腿第一段及走行,折叠O形腿第二段、第三段,折叠前支腿、辅助支腿;其次,对于架桥机主梁上部复杂的机械传动及电器控制部分如:卷扬机构、发电机组、电器控制室等都不能拆,因为它们的恢复都比较花费时间,所以选定搬移O形腿第四段、中横梁门架。下面重点介绍HZQ900吨架桥机超低位转场运输的工况和设备运输的安全技术设计,以便总结推广。
3 穿越8m限高的转场施工步骤
步骤一:
末跨架设完毕,先借助辅助支腿下走形、起吊小车等机构将下导梁从前方退出到后支腿位置;然后用后起重天车、运梁车上的驮梁小车将下导梁放置在运梁车上,再将其运至梁场(图2)。

图2 低位转场步骤一
步骤二:
在架桥机下指定位置安装门式支架,安装完毕后,收回后支腿顶升油缸,使门式支架承力;并将后支腿第一段连同后走行机构拆除;在架桥机起重天车的吊具上安装一个可旋转的临时吊钩,然后将后支腿第一段旋转90° 放置在运梁车上(图3)。

图3 低位转场步骤二
步骤三:
在架桥机起重天车的车架上安装一临时支顶油缸,然后分别将后支腿第四段,中横梁门子架顶起并搬移放置在主梁上;运梁车返回梁场将安装好的伸缩机构运载着(纵向)开入架桥机内部,并将1#、2#伸缩机构伸出并与运梁车用高强螺栓连接(图4)。

图4 低位转场步骤三
步骤四:
a、将伸缩机构与运梁车、架桥机用用高强螺栓连接,使伸缩机构承力;
b、利用2x10t电动手拉葫芦将后支腿第二段折叠到其法兰板与第三段腹板垂直位置;
c、利用10 t电动手拉葫芦,借助辅助天车将辅助支腿折叠收起;
d、利用2x10t电动手拉葫芦,借助前悬臂将前支腿折叠收起,并保证其最低点离地面有200mm间隙;
e、拆除门式支架下立柱(图5)。

图5 低位转场步骤四
步骤五:
a、利用1#、2#伸缩机构的导套导柱及液压系统将架桥机整体降落4.4m;
b、拆除门式支架的上立柱,然后再将架桥机整体降落300mm,保证架桥机整体加上运梁车高度在8m以内;
c、开始低位驮运(图6)。


图6 低位转场步骤五
4 穿越8m限高的转场中的技术创新点
4.1 起重天车改造
在起重天车的吊具上安装可旋转的吊钩,以方便转运后支腿的第一段并使其转动90°后放置在运梁车上;在起重天车的车架上安装顶升油缸,以方便搬运后支腿第四段及中横梁,这样做有利于整机高度的降低。
4.2 伸缩机构的技术创新
目前,与架桥机配套的驮运转场设备也有好几种形式,但大都只能实现高位驮运,唯有像伸缩机构的三套管结构形式能使架桥机直降几米后落在运梁车上,并且伸缩机构还不超出架桥机高度。
伸缩机构的顶横梁与主梁的连接采用八字斜口法兰连接方式,使运梁车驮运伸缩机构进入架桥机腹部就能与架桥机对接,而不用借助吊车。另外还将法兰上的孔群设计成长条孔状,使对位更加方便。
伸缩机构的底横梁与运梁车之间采用8个丁字铰座卡紧锁定,以保证高位驮运时整体的安全稳定。
5 结语
HZQ900型架桥机在哈大客运专线哈尔滨市区段完成了530孔箱梁的架设任务,成功实现了架桥机3次高位驮运转场和架桥机一次低位穿越净空8m的哈尔滨市四环路公路跨铁路桥的施工转场作业,为以后类似客运专线(高速铁路)进入大中城市市区出现的架桥设备通过限界作业提供了实践经验。
实践证明,HZQ900型架桥机是一种安全可靠、成本低、方便快捷、性能全面、适应性强的大型桥梁施工设备,特别是在需要频繁转移场地的作业工况及过隧道、叠桥、提篮拱等限界能发挥巨大的作用,经过熟练操作后,3天内就能完成转场调头工作。
参考文献
[1] GB/T3811-2008,起重机设计规范[S]
[2] TBJ2-96,铁路桥涵设计规范[S]
[3] 新铁建设【2005】140号,建时速200~250公里客运专线铁路设计暂行规定[R]
[4] GB50017-2003, 钢结构设计规范[S].
[5] GB3766-83, 液压系统通用技术条件[S].
[6] 王金诺、于兰峰 起重运输机金属结构[M]. 中国铁道出版社.
作者:
郑州市华中建机有限公司 技术部
地址:郑州市上街区工业路114号
邮编:450041







